Fermette à JEUK (3890)

339.000 €

Général
Prix
:
339.000 €
Revenu cadastral
:
443 €
Nombre de Chambre(s)
:
3 chr
Nombre de salle(s) de bain
:
1
Garage(s)
:
1
Adresse
:
Rampariestraat 42, 3890 JEUK
Superficie totale
:
160 m²
Superficie living
:
29 m²
Superficie terrain
:
690 m²
Largeur façade
:
15 m
Largeur terrain
:
26 m
Année de construction
:
1913
Description
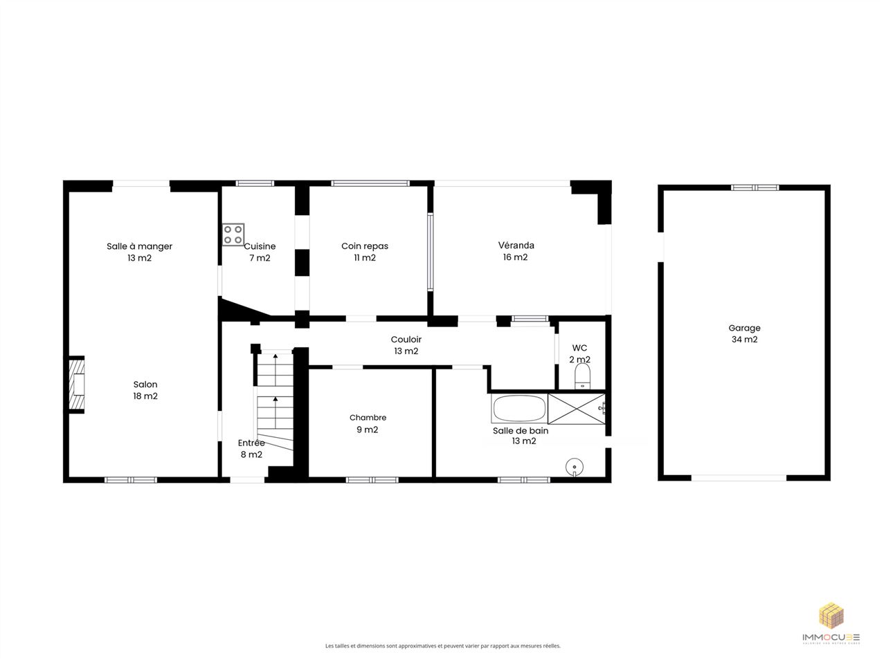
IMMOCUBE vous propose de découvrir cette charmante fermette rénovée de 3 chambres (possibilité 5) située dans le village de Gingelom (Jeuk). Celle-ci se compose, au rez-de-chaussée : Un hall avec wc individuel, un salon/salle à manger, une cuisine équipée avec un coin à manger, un hall intermédiaire menant vers une chambre (9 m²) et une salle de bain (Bain + douche). Au premier étage : Un hall de nuit desservant 2 chambres (10 et 15 m²) et un bureau (5 m²). Au deuxième étage, un grenier qui peut-être aménagé en 2 chambres (43 m²). Cette agréable maison dispose également d'une terrasse de 35 m² et une agréable pergola vitrée de 15 m², un jardin de 340 m², une cave sur une partie de la maison (15 m²) et un grand garage de 33 m². Aspects techniques : Châssis double vitrage PVC de 2015, électricité conforme jusque 2048, panneaux photovoltaïques de 2011 avec certificat vert jusque 2030, chauffage central au mazout (2015), boiler sur chaudière et alarme. Revenu cadastral : 443€. Possibilité de 2% de droits d'enregistrement pour les primos-acquéreurs. Prix : Faire offre à partir de 339.000€. PEB: C (E spec: 258 kWh/m².an - E totale: 35.019 kWh/an) N°20201126-0002344176-RES-1.
Informations financières
Certificat energétique
PEB No.20201126-0002344176-RES-1
E spec
:
258 kWh/m².an
E totale
:
35.019 kWh/an
Emission CO2
:
7 Kg CO2/m².an


Mentions legales
Droit de préemption possible
:
Pas encore demandé(e)
Permis de bâtir obtenu
:
Pas encore demandé(e)
Citation pour infraction urbanistique
:
Pas encore demandé(e)
Autorisation de lotissement
:
Pas encore demandé(e)
Affectation
:
Pas encore demandée
Héritages
:
Non
Confort/Equipements
Chauffage
:
C.C. au mazout
Orientation façade arrière
:
Nord
Type de toit
:
Non communiqué
Couverture du toit
:
Tuiles
Raccordement à l’eau
:
Oui
Cuisine
:
Equipée
Vitrage
:
Double
Type de vitrage
:
pvc
Confort intérieur
:
Alarme, Chaudière mazout, Radiateurs, Thermostat, Meubles de cuisine, Frigo, Four, Lave vaisselle, Hotte aspirante, Vitro, WC, Téléphone, Télévision, Panneaux photovoltaïques
Destination
:
Habitation
Composition
Salon(s)
:
29,1 m²
Salle(s) de bains
:
9,7 m²
Cuisine(s)
:
7,1 m²
Salle à manger
:
10,1 m²
Hall d'entrée
:
7,7 m²
Chambre(s)
:
9,0 m²
WC
:
1,7 m²
Hall de nuit
:
7,3 m²
Chambre(s)
:
15,4 m²
Chambre(s)
:
10,1 m²
Bureau
:
5,2 m²
WC
:
1,3 m²
Grenier aménageable
:
43,5 m²
Cave
:
5,9 m²
Cave
:
15,0 m²
Garage
:
32,3 m²
Terrasse
:
33,0 m²
Charges
Carte Google
Agrandir le plan
Street view