Appartement à WAREMME (4300)

190.000 €

Général
Prix
:
190.000 €
Revenu cadastral
:
969 €
Nombre de Chambre(s)
:
3 chr
Nombre de salle(s) de bain
:
1
Garage(s)
:
1
Adresse
:
Avenue Edmond Leburton 101, 4300 WAREMME
Superficie totale
:
101 m²
Superficie living
:
31 m²
Largeur façade
:
8 m
Largeur terrain
:
8 m
Année de construction
:
1960
Description
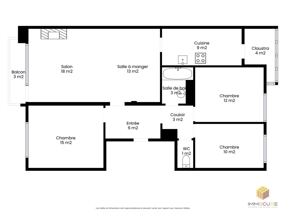
IMMOCUBE vous présente ce charmant appartement 3 chambres idéalement situé dans le centre-ville de Waremme dans la résidence LE MAJARE. Cet appartement de 101 m² se situe au troisième étage avec ascenseur, il se compose comme suit : Un hall d'entrée, un wc individuel, un spacieux salon/salle à manger de 31 m², une cuisine, une salle de bain, un hall de nuit et 3 chambres (10, 12 et 15 m²). L'appartement possède une cave et un garage.Aspects techniques : Chauffage central mazout communs + eau sur chaudière, électricité non conforme (rapport en cours) et châssis double vitrage alu. Revenu cadastral : 969€. Faire offre à partir de 190.000€. Excellent PEB : C ( Espec : 245 kWh/m².an - Etotale : 24.722 kWh/an ). N°20250922006117.
Informations financières
Certificat energétique
PEB No.20250922006117
E spec
:
245 kWh/m².an
E totale
:
24.722 kWh/an


Mentions legales
Droit de préemption possible
:
Pas encore demandé(e)
Permis de bâtir obtenu
:
Pas encore demandé(e)
Citation pour infraction urbanistique
:
Pas encore demandé(e)
Autorisation de lotissement
:
Pas encore demandé(e)
Affectation
:
Pas encore demandée
Héritages
:
Non
Confort/Equipements
Chauffage
:
C.C. au mazout
Orientation façade arrière
:
Nord
Type de toit
:
Toit plat
Raccordement à l’eau
:
Oui
Cuisine
:
Equipement de base
Vitrage
:
Double
Type de vitrage
:
alu
Confort intérieur
:
WC, Baignoire, Téléphone, Télévision
Confort extérieur
:
Veranda
Destination
:
Habitation
Composition
Hall d'entrée
:
5,5 m²
WC
:
1,2 m²
Salle à manger
:
21,2 m²
Cuisine
:
9,0 m²
Chambre(s)
:
12,0 m²
Chambre(s)
:
9,9 m²
Chambre(s)
:
15,7 m²
Salon
:
11,0 m²
Salle(s) de bains
:
2,8 m²
Hall de nuit
:
1,9 m²
Veranda
:
3,5 m²
Charges
Carte Google
Agrandir le plan
Street view